加拿大Guu Izakaya餐馆
来源:金玉米 编辑:admin
时间:2011-02-26










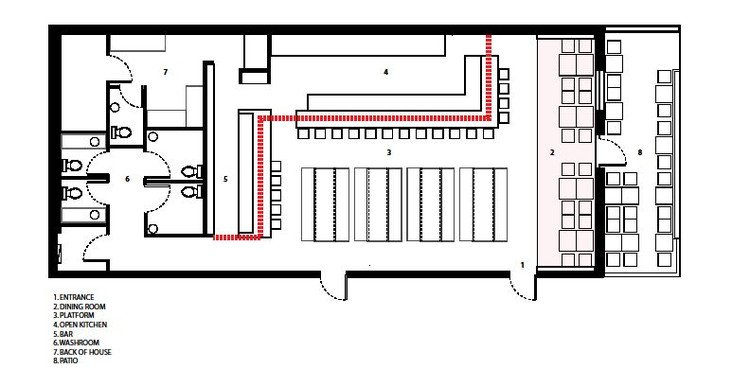
这是位于加拿大多伦多的Guu Izakaya餐馆。由Dialogue 38设计。
上一篇:全球10家顶级餐厅
下一篇:让男人血脉喷张的超性感餐厅










服务号:金玉米
(官方消息发布)
订阅号:金玉米
(八卦奢侈品,解码大牌潮流趋势,揭秘时尚大咖撕逼内幕)