灰色厨房设计理念
来源:金玉米 编辑:小河流水
时间:2016-01-25

灰色厨房设计理念

厨房书架瓷砖

灰色的厨房工作台面

厨房的水槽和水龙头

灰色的橱柜漆的颜色

轨道吊灯

餐厅

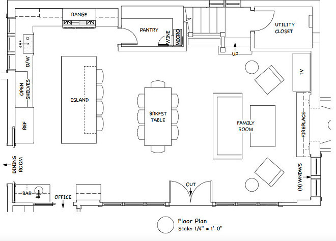
房间的尺寸

这个房间是35′8“长23′5”深。厨房和餐厅部分都是宽约12′。
墙漆颜色

开放的概念厨房平面图

上一篇:家居装修最忌讳的三种色彩
下一篇:宜家2012厨房设计理念