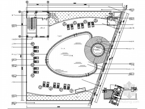
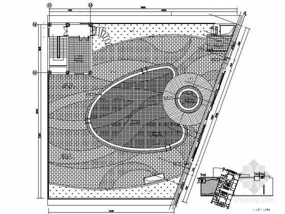
酒店带游泳池屋顶花园平面图
来源:金玉米 编辑:月亮
时间:2016-01-06


上一篇:酒店泳池设计集锦
下一篇:再小的家也要有个吃饭的角
服务号:金玉米
(官方消息发布)
订阅号:金玉米
(八卦奢侈品,解码大牌潮流趋势,揭秘时尚大咖撕逼内幕)